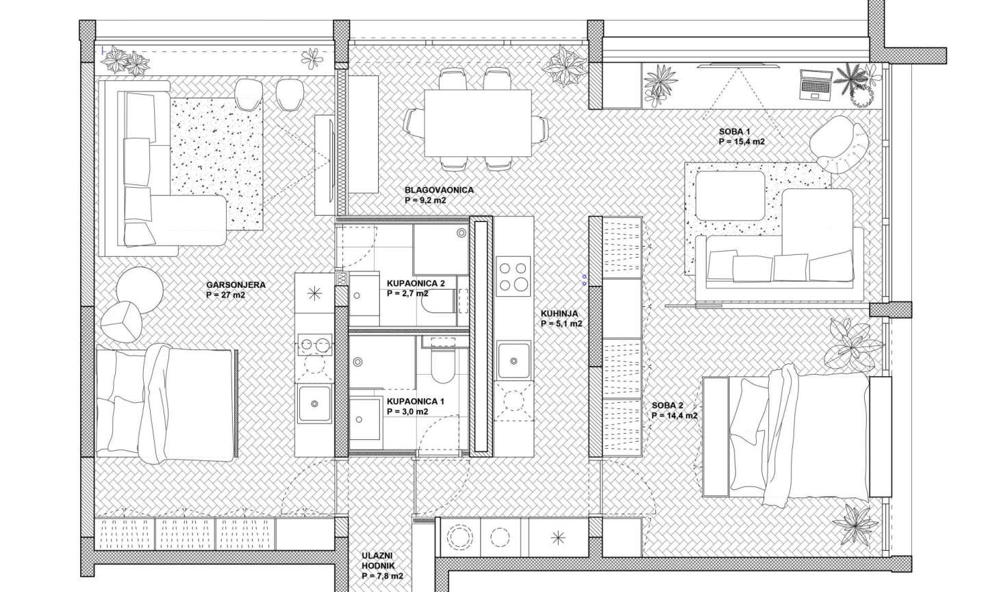
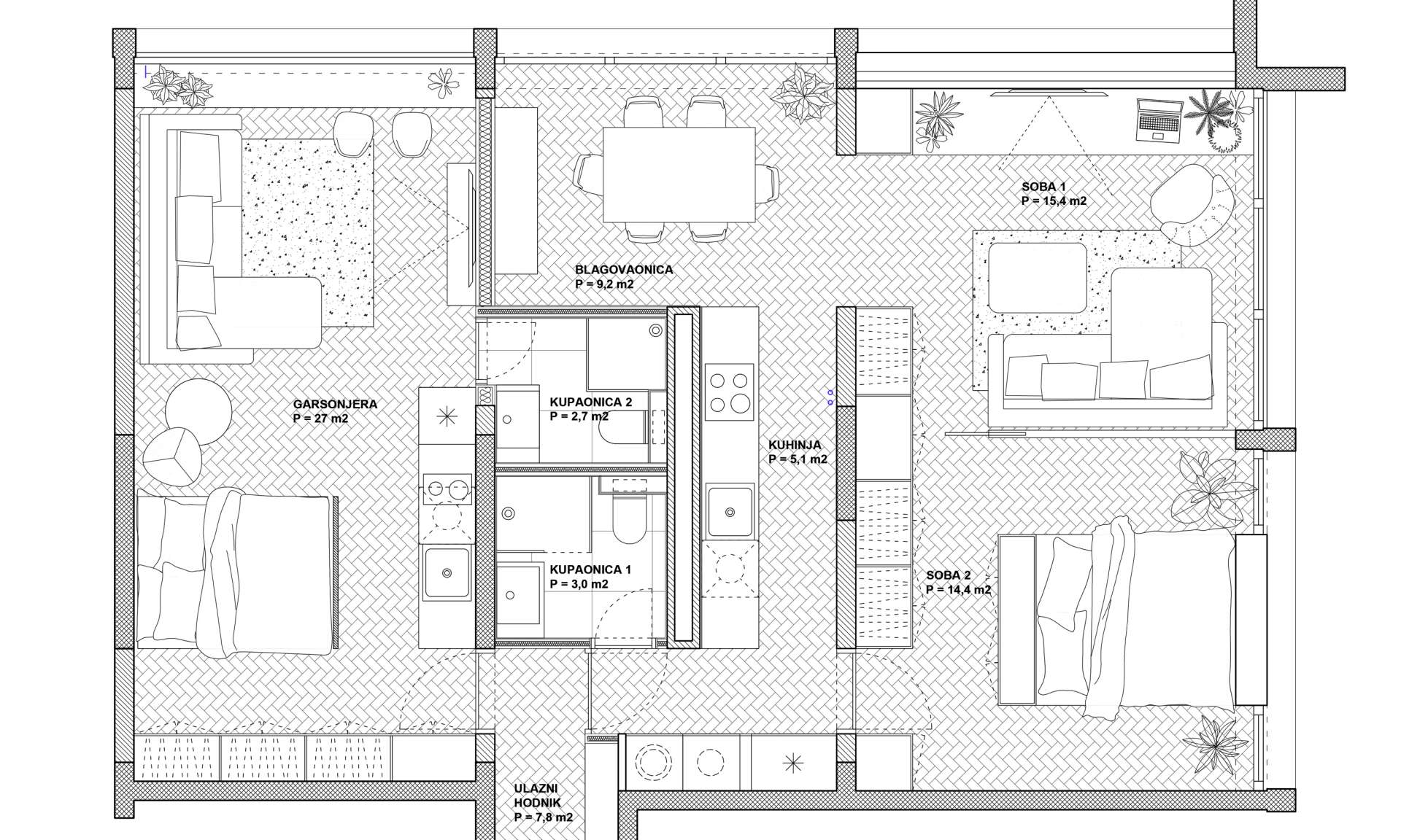
Fleksibilan, dobro osvijetljen i dvostrano orijentiran postojeći stan, jednostavnom je intervencijom prenamijenjen - sukladno trenutnim potrebama korisnika - u dva manja: dvosobni stan i garsonjeru. Minimalistički opremljen interijer i maksimalno iskorišten prostor za odlaganje, afirmiraju prilagodbu stana životnom ciklusu mlade obitelji. Izmicanjem jedinog pregradnog zida i prenamjenom prostorija / premještanjem namještaja, stan se ponovno koristi u cjelini, kao trosobni ili četverosobni.
- Projekt: 2u1 stanovanje
- Program: stanovanje / interijer
- Status: izgrađeno
- Lokacija: Zagreb
- Brutto: 86 m2